제주 하원동 패시브하우스 1.4L

2017~2020 @자림건축사사무소

규모 : 지상2층
대지면적 : 535㎡

연면적 : 188.95㎡
구조 : 철근콘크리트

난방성능 : 1.4리터/㎡
기밀성능 : n50 0.16회/h

구조설계 : 위가구조 김덕기
설비설계 : (주)서원이엔씨
전기설계 : (주)하이플랜
에너지해석/기밀테스트 : (사)한국패시브건축협회
인테리어설계 : 이정규
건축시공 : 제주패시브하우스

열회수환기장치 : Blauberg Komfort 350

창호 : 앤썸캐머링 삼중유리시스템창호

열교차단블럭 : TB Block

사진촬영 : 정태호

* brique Vol.10 Stay here

“광주 서창동 패시브하우스를 보고 난 뒤, 패시브하우스도 이렇게 큰 창호를 가질 수 있구나 하는 점과 건물의 외관 디자인도 단순하고 현대적으로 본인들이 원하는 방향으로 지을 수 있겠구나 라는 생각이 들었다고 했다. 특히 패시브하우스라고 하면 기밀하게 만들기 위해서 창문은 아주 작게 만들어야만 하는 선입관이 있었는데 광주주택을 통해서 그게 아니라는 가능성을 알게됐다고 했다.

 

그런 이유가 있었던 만큼 ‘커다란 창호’는 이 집의 가장 중요한 요소가 되어야 했고, 그리하여 제주의 ‘첫 번째 철근콘크리트 패시브하우스’는 남측으로 넓게 펼쳐진 서귀포 앞바다와 고려시대 건립됐을 것으로 추정되는 법화사, 사방을 둘러싸고 있는 넓은 귤밭의 전망을 갖는 집으로 지어지게 되었다. 더불어 정남향의 큰 창호는 전망을 끌어들이는 것 외에도 겨울철 일사 에너지를 충분히 얻고자 하는 목적도 같이 이룰 수 있었다. 지금까지도 제주도에 이 주택 외에는 모두 목조로 된 패시브하우스만이 지어진 상태이다.

 

큰 창호로 인해 건축주가 바라던 리조트호텔에 와있는 듯한 기분을 낼 수 있는 커다란 욕조와 더불어 변기에 앉아서도 조망이 가능한 큰 욕실도 실현할 수 있었다.

 

주변을 내다볼 수 있는 대지 여건은, 반대로 아래에서 언덕 위의 집이 눈에 잘 띄므로, 아래 법화사와의 관계를 고려하여 검정색의 전벽돌로 마감하고​, 형태 또한 최소의 변화를 갖도록 하여 경관을 해치지 않고 최대한 자연과 어우러질 수 있도록 계획하고자 하였다. 내부는 이러한 외관과는 대비를 이루며 모두 백색으로 마감이 되었다.

 

패시브하우스에 대해서는 한국패시브건축협회 홈페이지 및 여러 곳을 통해 이미 건축주가 공부를 많이 한 상태여서 기술적으로 필요한 부분에 관해 설명이 따로 필요 없을 정도로 높은 수준이었다. 그래서 설계과정에서 어려울 것이 거의 없었지만, 한 가지 꼭 원했던 벽난로는 넣기가 쉽지 않았다. 실제로 장작을 때는 것을 원하였는데, 이것은 연소로 인해 발생하는 이산화탄소문제 말고도 연통 주변의 기밀을 확보하기 어려워서 검토를 거듭한 끝에 결국 내부에는 에탄올 벽난로로 실제 불꽃 분위기를 낼 정도로 하고, 외부에 바비큐가 가능한 파이어플레이스를 설치하는 것으로서 접점을 찾게 되었다. 사실 패시브하우스는 고단열, 고기밀을 갖춘 집으로서 내부의 온도가 겨울철에 난방을 하지 않아도 쉽게 내려가지 않기 때문에 사실상 공기를 빠르게 데우는 벽난로는 불필요한 요소이기도 하다.

 

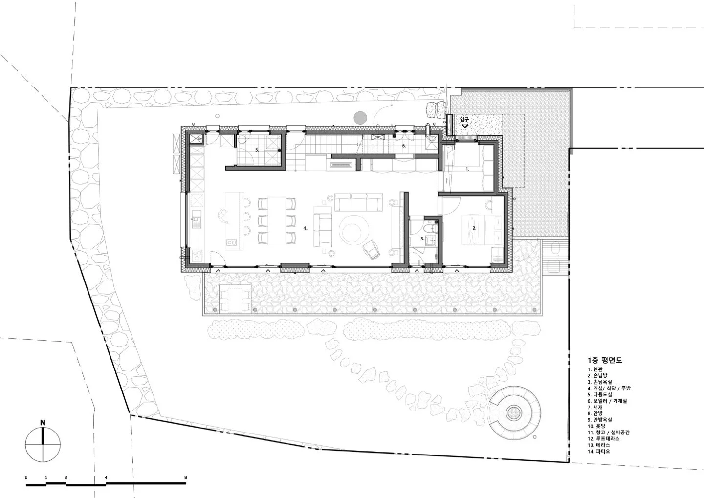
프로그램은 1층에 거실, 식당과 주방 및 손님방 등 공적인 공간을 두었고, 2층에는 서재, 침실과 욕실 등을 두어 사적인 공간으로 나뉘도록 배치하였다. 1층은 2.9미터의 높은 천장고를 확보하여 손님방을 제외하고 모두 트이도록하여 집안 행사나 손님들의 방문 시에도 여유있는 큰 공간이 되도록 하였다. 특히 외부 마당과 1층 사이에는 해질녘 붉게 타오르는 석양을 보며 차 한잔 마실 수 있는 넓은 데크공간을 조성하였다.